Vertriebsbüro 

                Henning Leiser               Deckensysteme und Streckmetall

Produktauswahl

Downloads

 

Impressum

Celtica - Rasterdecken

Deckensysteme

Rasterdecken

Standard-Raster

Lichtraster

Design-Dekor-Raster

Celtica-Raster

Lamellendecken

E-Mail - Kontakt

zurück - 01 - 02 - 03 - 04 - weiter

Es gibt 5 verschiedene Standard - Variationen von Celtica - Einlegerastern, welche auf dieser Seite aufgeführt sind. 

Weitere Rastervarianten sind meist auf Anfrage möglich. Wir freuen uns auf Ihre individuelle Herausforderung!

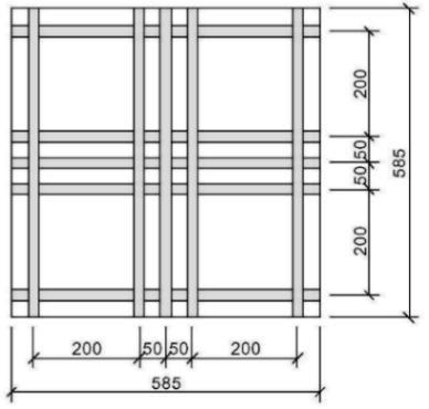
Celtica-Raster - CP1

Download für Celtica-Raster:

 - Celtica-Raster (PDF 1,3 MB)

 - Ausschreibung Celtica-Raster

 - weitere Downloadmöglichkeiten 

Celtica-Raster - CP2

Celtica-Raster - CP3

Celtica-Raster - CP4

Celtica-Raster - CP5

zurück - 01 - 02 - 03 - 04 - weiter

Anschrift / Kontakt:

Vertriebsbüro Henning Leiser

Welckerstrasse 6 --- D-35305 Grünberg (Deutschland/Germany)

Tel: +49 (0) 6401-22388-0 --- Fax: +49 (0) 6401-22388-20